Обяви За нас Контакти
Продава 2-СТАЕН
град София, с. Панчарево
198 000 €
387 254.34 лв.

(2 475 €, 4 840.68 лв./m2)
Цената е с включено ДДС
История на цената
Публикувана в 11:51 на 1 април, 2026 год.
Обявата е посетена 85 пъти.
Площ:
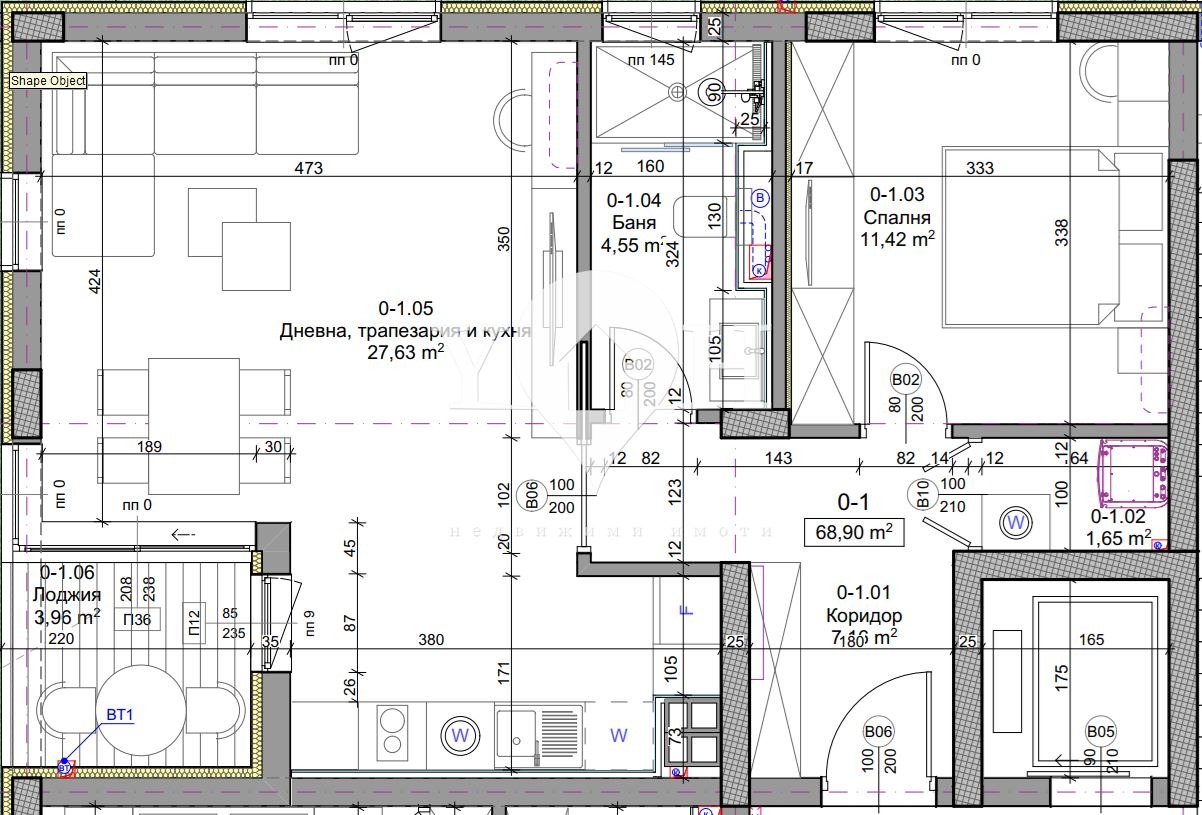
80 m2
Етаж:
Партер от 3
Газ:
НЕ
Строителство:
Тухла, Въведен в експлоатация 2026 г.

Описание на имота:


АКТ 15 до 30 май 2026 година! Схема на плащане 10% на ПД и 90% след АКТ16!

Екипът на YOHOME недвижими имоти има удоволствието да ви представи нов ексклузивен проект, предлагащ качество, висок клас изпълнение и множество удобства. В цената са включени, отопление термопомпа Daikin, 20-камерна дограма с триплекс, подово отопление, както и редица други предимства за бъдещите обитатели на комплекс CHERISH.

Инвеститорът е изпълнил всички европейски стандарти и е изградил върху собствен терен няколко сгради, доказвайки, че качеството не е компромис, а начин на живот.

Предлаганият имот
Двустаен апартамент, разположен на Партерен етаж на сграда В. Имотът се състои от:

Входно антре
Просторен хол с излаз към голяма тераса
Спалня
Две бани
Мокро помещение

Включено в цената
Термопомпа DAIKIN - Altherma 3 и цялостна отоплителна и охладителна система
Подово отопление и климатици във всички помещения
Бани, изпълнени с висококачествени структури, сифони VIEGA
Индивидуален въздуховод за всяка кухня
Обезшумени ВиК щрангове
Входна врата SOLID най-висок клас, последен модел

Характеристики на сградата
Висококачествена алуминиева дограма с триплексови стъклопакети
Окачена вентилируема фасада от естествен камък и дърво / LAMINAM и HPL /
20 см каменна вата
Парапети от триплекс
Общи части от естествен камък, окачени тавани
Шумо- и топлоизолации
Асансьор от най-висок клас на Otis GeN2 life
1829 кв.м. зелени площи
Амбиентно осветление

За повече информация относно комплекса, поддръжката и всички детайли, свържете се с нас и цитирайте кода на обявата:78175
Особености
Тухла
Асансьор
С паркинг
Видео наблюдение
Контрол на достъпа
Саниран
В затворен комплекс
За контакт:
0877988099
Агенция:
ЙОХОУМ
0877988099
ЙОХОУМ logo
Медал за прослужено време
В imot.bg от 2020 г.
yohome.imot.bg
Адрес:
област София, гр. София, кв. Изток, ул. Николай Хайтов 2
http://www.yohome.bg
ИЗПРАТИ ЗАПИТВАНЕ
ИЗПРАТИ ЗАПИТВАНЕТО

Продава 2-СТАЕН
град София, с. Панчарево
Обява: 1b177503348501780

198 000 €
387 254.34 лв.
История на цената
(2 475 €, 4 840.68 лв./m2)

Цената е с включено ДДС
ЗАПАЗИ ОБЯВАТА

Местоположение: град София, с. Панчарево

Допълнителни данни за имотите в района и сравнение с други райони

Покажи

Период

и 3 месеца

* Средните цени са определени чрез медианна стойност